-
Maison DO.
Beaucaire, Gard (30), France
Particulier - Chantier en cours
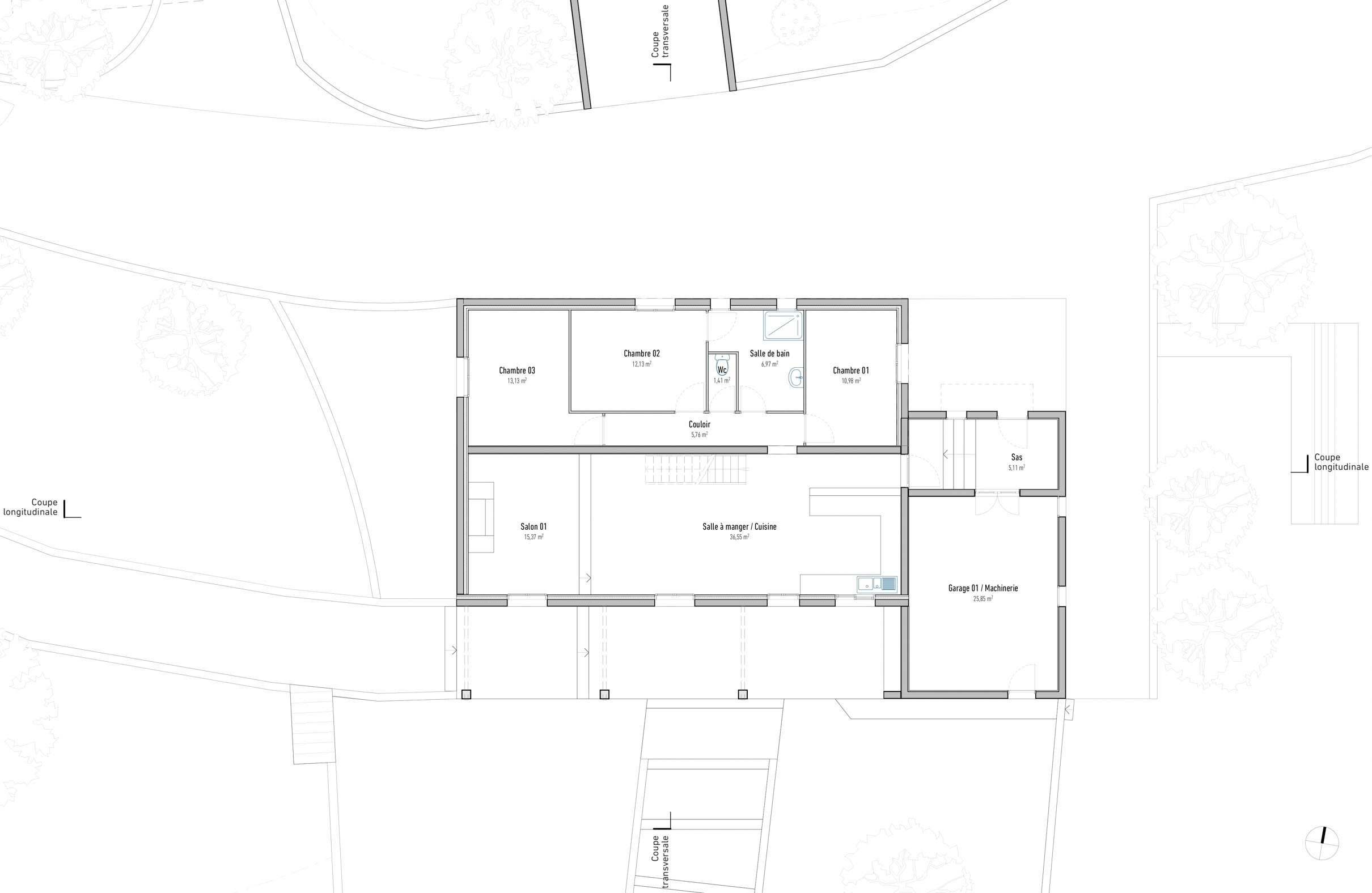
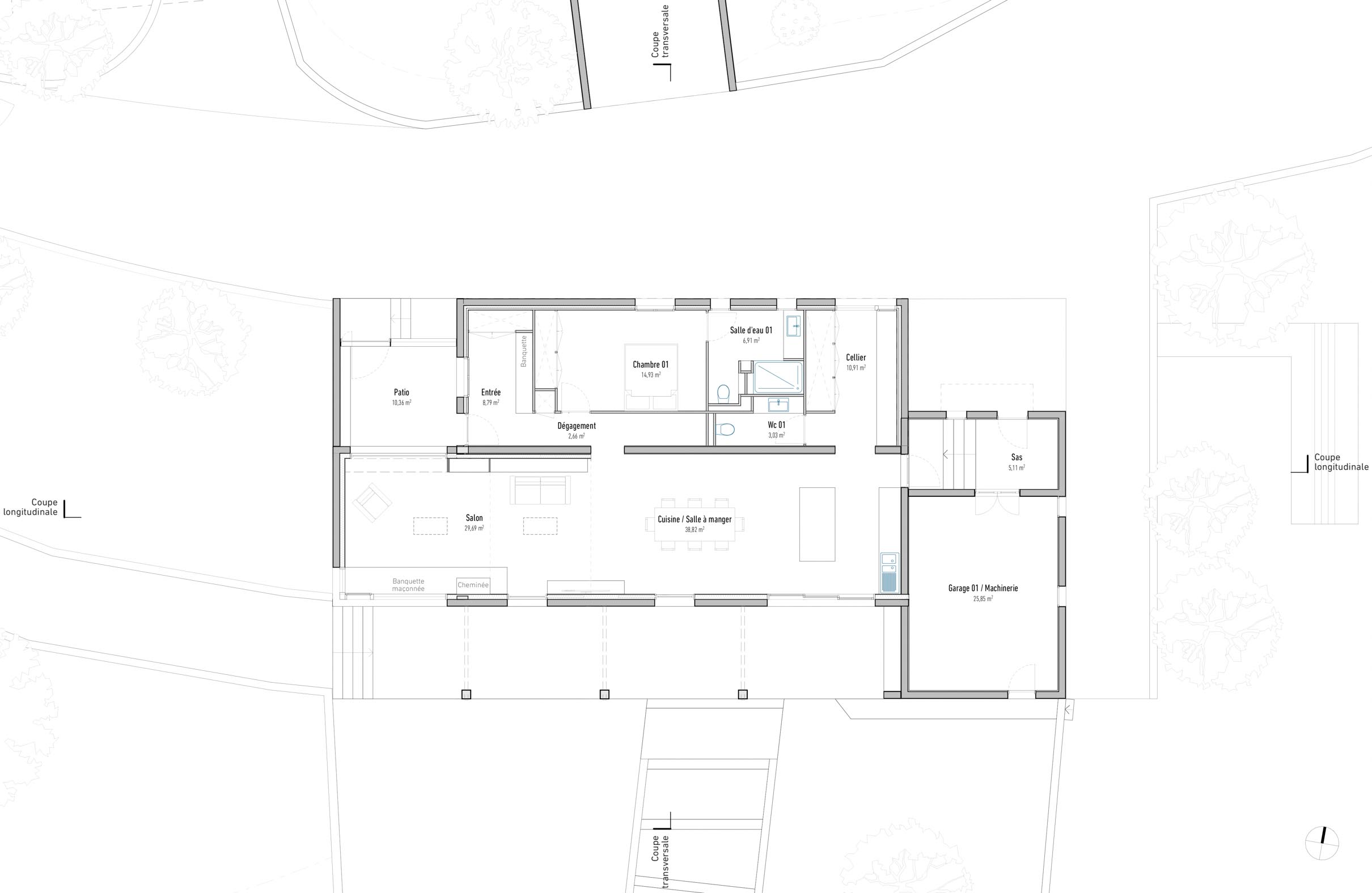
Située à la lisière d'une pinède, une maison prend place en surplomb d'une oliveraie. Le projet de rénovation et d'extension de cette maison est en cours d'études.
-
-
-
-
-
-
-
Située à la lisière d'une pinède, une maison prend place en surplomb d'une oliveraie. Le projet de rénovation et d'extension de cette maison est en cours d'études.